6/1 Carlson Avenue, CLAYTON
House
Cluny Sisters Convent and Community House plus Four Independent Living Units
For Sale by Expressions of Interest closing Friday 11th August at 5pm
Offered for sale for the first time.
A once in a lifetime chance to secure this outstanding opportunity.
This exceptional property is in truly superb condition throughout in a private and quiet lifestyle location with easy access to Chadstone Shopping Centre, Monash Freeway, Clayton train station and numerous specialty shops.
Accommodation Comprises:
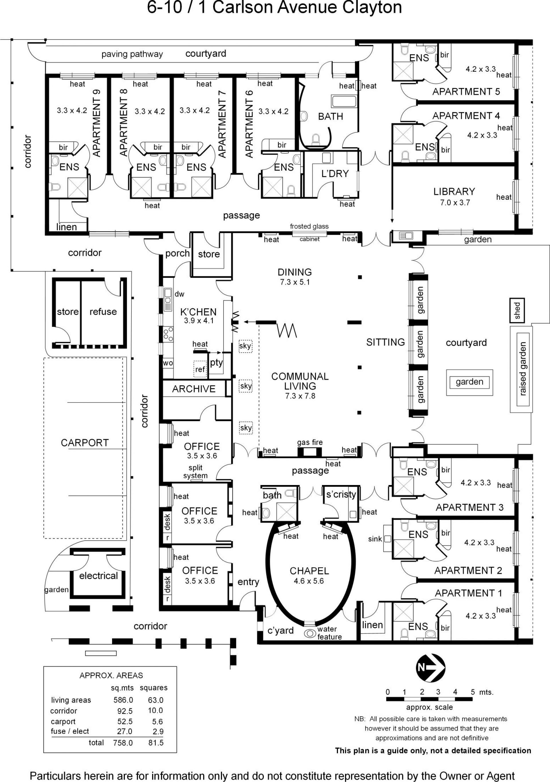
Unit 6 - nine separate one bedroom units with ensuites and built in robes, with multiple dining and lounge rooms, offices, library, sitting rooms, storage facilities, chapel and 4 car spaces.
Unit 7 - Villa Unit: 2 bedrooms, living, kitchen, meals, bathroom, 1 car space.
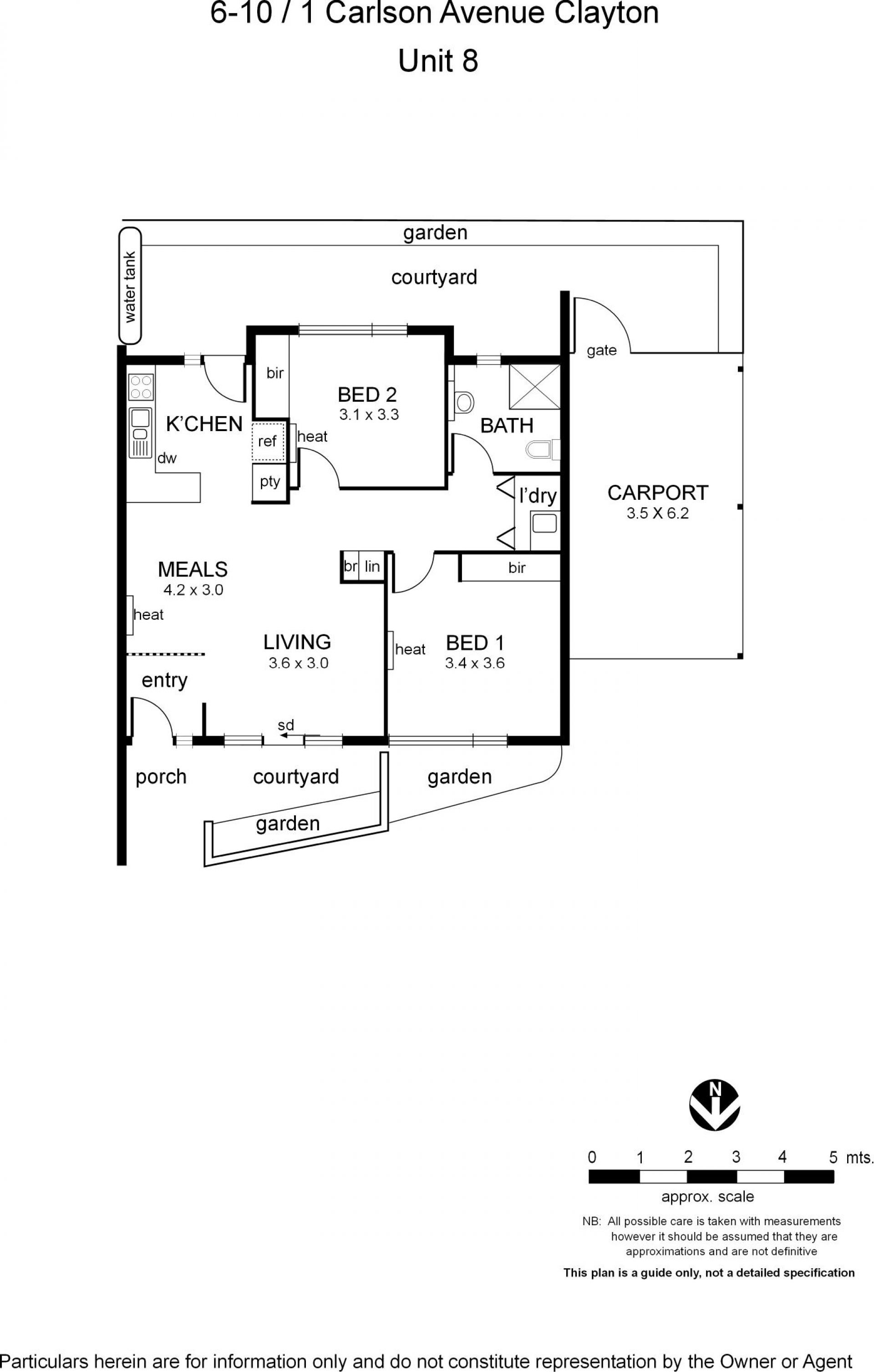
Unit 8 - Villa Unit: 2 bedrooms, living, kitchen, meals, bathroom, 1 car space.
Unit 9 - Villa Unit: 2 bedrooms, living, kitchen, meals, bathroom, 1 car space.
Unit 10 - Villa Unit: 2 bedrooms, living, kitchen, meals, bathroom.
Total: 17 Bedrooms, 15 Bathrooms, 7 car spaces
Numerous living options including self-contained villas and community accommodation.
Adjacent Carlson Avenue Reserve with beautiful views overlooking the manicured gardens and parklands from the secure residences or extensive outdoor courtyard areas. Prominent north facing living and bedding areas attract an abundance of natural sunlight for year-round comfort.
Zoning: General Residential Zone-Schedule 2
Land: 1850m2 (Approx.)
Occupation of the development is restricted to:
- a person who is at least 55 years of age, and/or
- a person who is a member of a religious order or a member of the clergy and/or
- a dependent person
Offered for sale for the first time.
A once in a lifetime chance to secure this outstanding opportunity.
This exceptional property is in truly superb condition throughout in a private and quiet lifestyle location with easy access to Chadstone Shopping Centre, Monash Freeway, Clayton train station and numerous specialty shops.
Accommodation Comprises:
Unit 6 - nine separate one bedroom units with ensuites and built in robes, with multiple dining and lounge rooms, offices, library, sitting rooms, storage facilities, chapel and 4 car spaces.
Unit 7 - Villa Unit: 2 bedrooms, living, kitchen, meals, bathroom, 1 car space.
Unit 8 - Villa Unit: 2 bedrooms, living, kitchen, meals, bathroom, 1 car space.
Unit 9 - Villa Unit: 2 bedrooms, living, kitchen, meals, bathroom, 1 car space.
Unit 10 - Villa Unit: 2 bedrooms, living, kitchen, meals, bathroom.
Total: 17 Bedrooms, 15 Bathrooms, 7 car spaces
Numerous living options including self-contained villas and community accommodation.
Adjacent Carlson Avenue Reserve with beautiful views overlooking the manicured gardens and parklands from the secure residences or extensive outdoor courtyard areas. Prominent north facing living and bedding areas attract an abundance of natural sunlight for year-round comfort.
Zoning: General Residential Zone-Schedule 2
Land: 1850m2 (Approx.)
Occupation of the development is restricted to:
- a person who is at least 55 years of age, and/or
- a person who is a member of a religious order or a member of the clergy and/or
- a dependent person
