51 Drummond Street, Chadstone
House
Endless Possibilities in Enviable Locale
This outstanding allotment is a great stepping stone to your future real estate dreams, with the possibility to renovate, rebuild or develop (STA) the options are limitless.
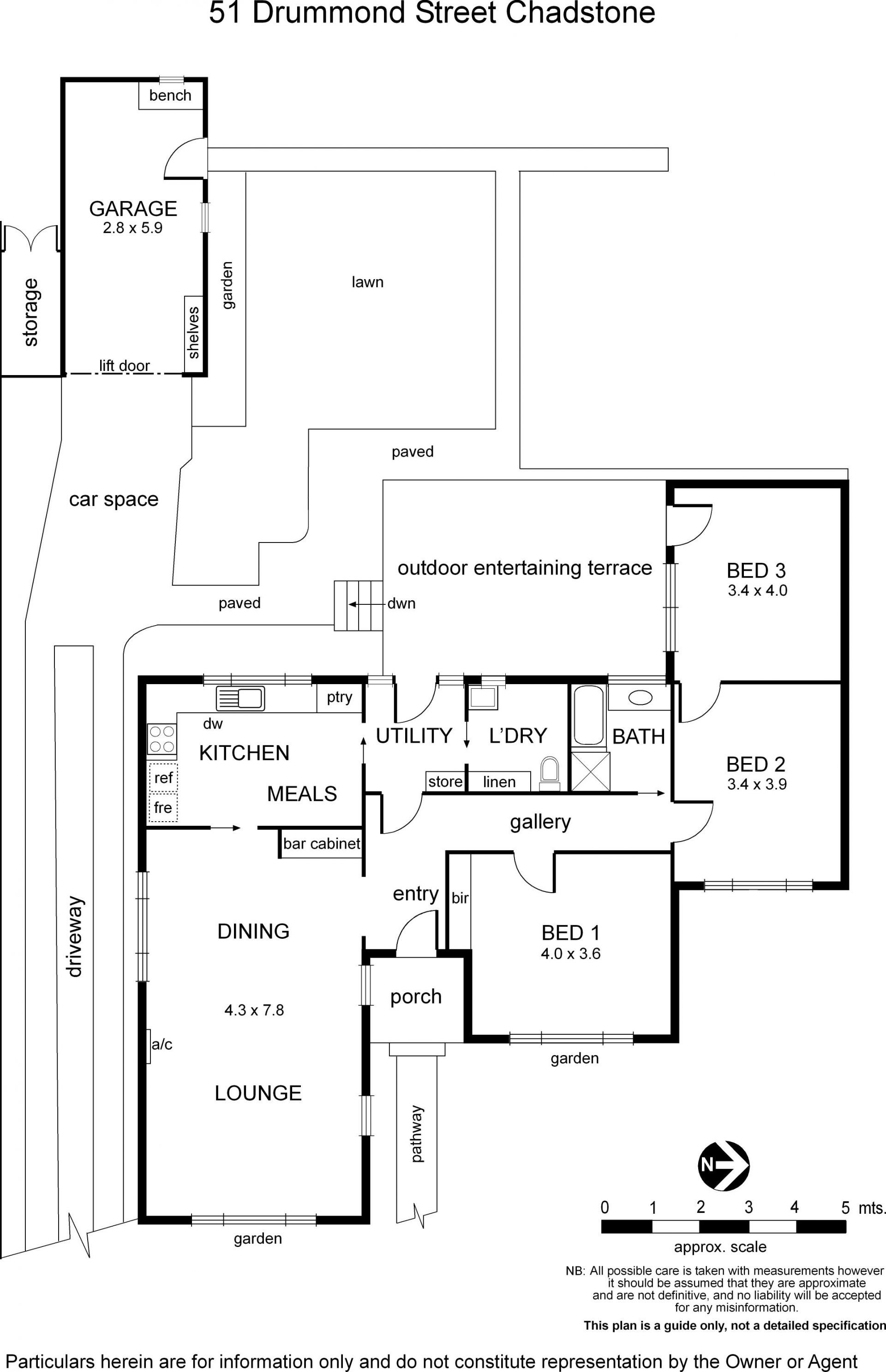
A solid home which has been supremely cared for over decades with immaculately manicured gardens from fence to fence and comprising three bedrooms, central bathroom, kitchen, large living/dining area, laundry and rear entertainer's terrace.
The amazing land size is only rivalled by its unparalleled position being mere moments to the Fashion Capital Chadstone Shopping Centre, Holmesglen Tafe, Scotchman' Creek Reserve & Trail, Oakleigh Tennis Club, Caloola Reserve and extremely easy access to the M1 Freeway & public transport and close to schools such as Oakleigh Primary, Ashwood High and Salesian College.
Situated on 896sqm (approx.) of prime residential land.
A solid home which has been supremely cared for over decades with immaculately manicured gardens from fence to fence and comprising three bedrooms, central bathroom, kitchen, large living/dining area, laundry and rear entertainer's terrace.
The amazing land size is only rivalled by its unparalleled position being mere moments to the Fashion Capital Chadstone Shopping Centre, Holmesglen Tafe, Scotchman' Creek Reserve & Trail, Oakleigh Tennis Club, Caloola Reserve and extremely easy access to the M1 Freeway & public transport and close to schools such as Oakleigh Primary, Ashwood High and Salesian College.
Situated on 896sqm (approx.) of prime residential land.
