11 Duke Street, ASHBURTON
House
Two Residences and Two Driveways - One Rare Opportunity
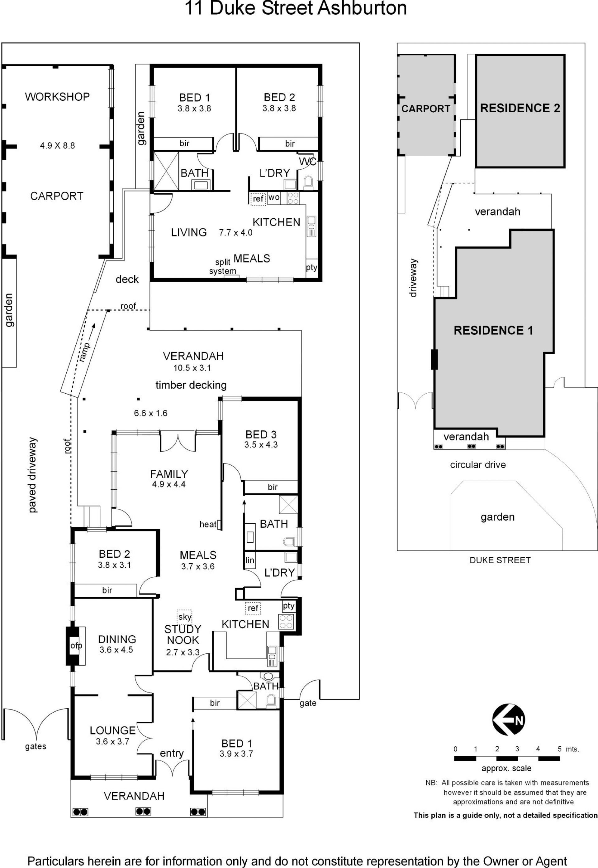
A rare opportunity awaits to secure a treasured property which has two residences and two driveways plus occupies a large allotment of 790m2 approx.. with a wide 18.3m frontage.
Exceptional convenience in a location allowing a short walk to High Street shopping and Ashburton Village, Ferndale trail and parklands, Ashburton station and quality schooling options.
Front Residence: Three bedrooms (built in robes), formal lounge and dining room, kitchen, family room, two bathrooms and laundry.
Rear Residence: Two bedrooms (built in robes) kitchen and meals, open plan living, bathroom and separate laundry.
External Areas: Carport and workshop area, large timber deck, two crossovers from Duke Street with circular driveway.
Providing options to owner occupy, renovate, rent out or develop a brand new home or multi-units (STCA)
Land: 790m2 approx..
18.3m Frontage to Duke Street
Exceptional convenience in a location allowing a short walk to High Street shopping and Ashburton Village, Ferndale trail and parklands, Ashburton station and quality schooling options.
Front Residence: Three bedrooms (built in robes), formal lounge and dining room, kitchen, family room, two bathrooms and laundry.
Rear Residence: Two bedrooms (built in robes) kitchen and meals, open plan living, bathroom and separate laundry.
External Areas: Carport and workshop area, large timber deck, two crossovers from Duke Street with circular driveway.
Providing options to owner occupy, renovate, rent out or develop a brand new home or multi-units (STCA)
Land: 790m2 approx..
18.3m Frontage to Duke Street
