150 Glen Iris Road, Glen Iris
House
Elite Family Credentials in Premier Position
Perched at the top of the suburb's pre-eminent tree lined boulevard is this elegant period residence which has been meticulously cared for by the same owners for decades and offers elite family characteristics across a sizable floorplan and impressive allotment.
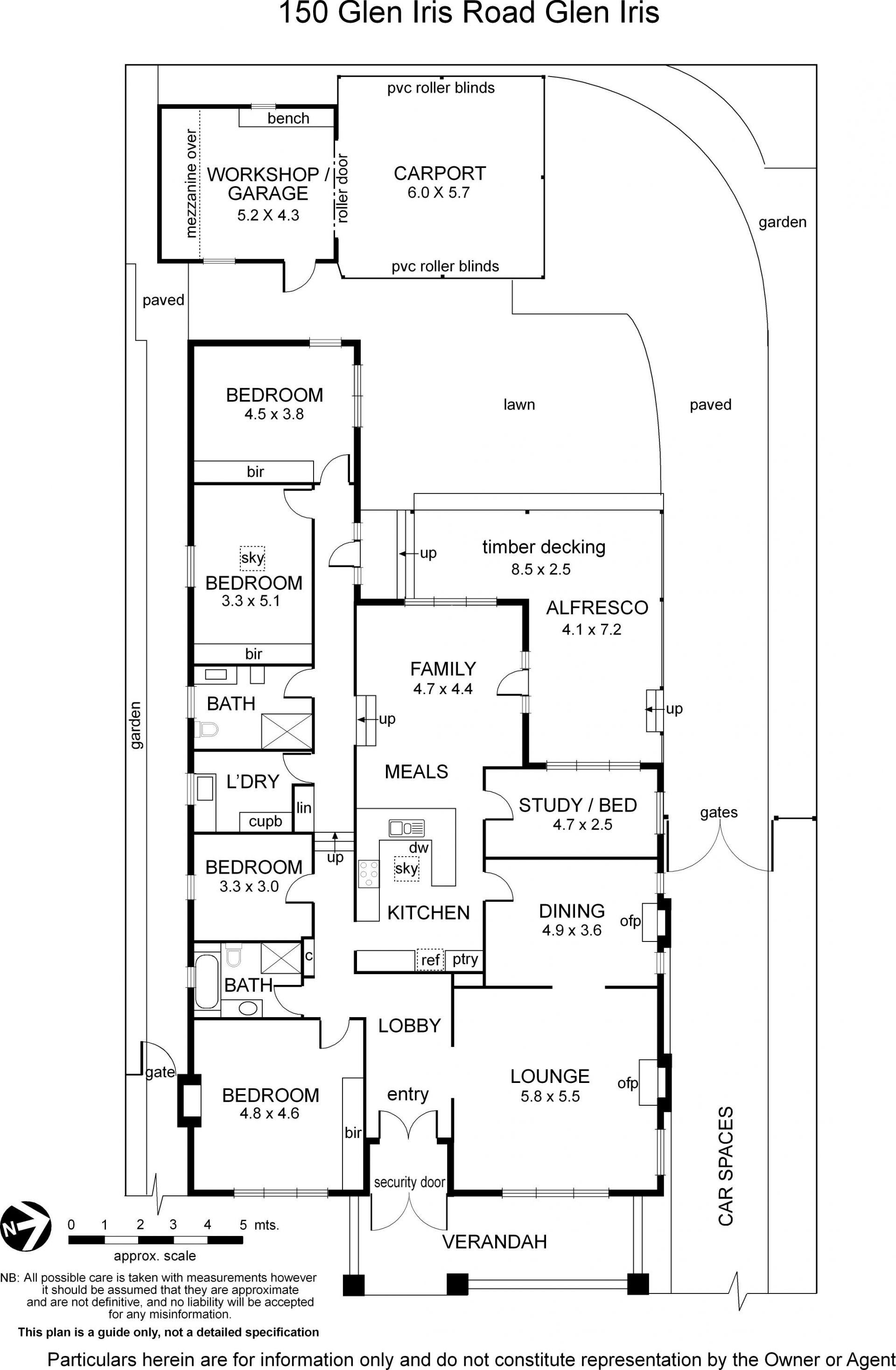
Immaculate in condition, the grand residence commences with tuck-pointed facade and wide entrance hallway that leads to formal living and dining rooms embellished with detail and modern touches. Generous accommodation is found through five double bedrooms and two spacious bathrooms plus separate laundry to cater for the largest of families. One of many highlights is the stunning kitchen with quality appliances and open plan family room which enjoys outlooks to the deep rear yard and easy access to the undercover alfresco and expansive decked entertaining area.
Ample outdoor spaces are surrounded by manicured gardens and grassed areas in a salubrious setting with double carport, long driveway and garage providing functionality and options to utilise as preferred.
Just some of a long list of luxuries include; ducted heating recently upgraded, sheer curtains and blinds, open fire place, high ceilings, plantation shutters, split system air con. etc.
An exquisite residence full of class, character and exceptional family credentials the attraction is further enhanced with a position nearby Ferndale Park and walking trails, Gardiners Creek, cafes, High Street shopping, premier schooling options plus easy access to the M1, Glen Iris train station and CBD.
Land: 20.12m x 45.72m (920sqm)
Immaculate in condition, the grand residence commences with tuck-pointed facade and wide entrance hallway that leads to formal living and dining rooms embellished with detail and modern touches. Generous accommodation is found through five double bedrooms and two spacious bathrooms plus separate laundry to cater for the largest of families. One of many highlights is the stunning kitchen with quality appliances and open plan family room which enjoys outlooks to the deep rear yard and easy access to the undercover alfresco and expansive decked entertaining area.
Ample outdoor spaces are surrounded by manicured gardens and grassed areas in a salubrious setting with double carport, long driveway and garage providing functionality and options to utilise as preferred.
Just some of a long list of luxuries include; ducted heating recently upgraded, sheer curtains and blinds, open fire place, high ceilings, plantation shutters, split system air con. etc.
An exquisite residence full of class, character and exceptional family credentials the attraction is further enhanced with a position nearby Ferndale Park and walking trails, Gardiners Creek, cafes, High Street shopping, premier schooling options plus easy access to the M1, Glen Iris train station and CBD.
Land: 20.12m x 45.72m (920sqm)
For Sale
$2,950,000
- 5
- 2
- 3
920 sqm
Inspection
18
Mar
Wednesday, 2:00 pm - 2:30 pm
Add To Calendar
22
Mar
Sunday, 11:00 am - 11:30 am
Add To Calendar
